Search Properties

Empress Road, Derby

Derby

£475 pcm

1 x
Department:
Lettings
Type:
Studio
Availability:
To Let
Receptions:
1
Furnished:
Furnished
Deposit:
£548
Available Date:
2025-11-19
Council Tax Band:
A

Property features

  • Studio flat, Empress Road
  • Built in 1880, historic charm
  • 280 sq ft, cosy space
  • Fully furnished, move-in ready
  • Kitchen appliances included
  • Deposit alternative: £150
  • Bills not included
  • Available now, act fast
  • Close to Derby amenities
  • Ideal for singles or couples

Summary

Nestled on the charming Empress Road in Derby, this delightful studio flat offers a unique blend of character and modern living. Built in 1880, the property boasts a rich history while providing all the comforts of contemporary life. Spanning an efficient 280 square feet, this fully furnished studio is perfect for individuals seeking a cosy and stylish living space.

Upon entering, you will find a well-appointed reception area that serves as the heart of the home, ideal for relaxation or entertaining guests. The studio is thoughtfully designed to maximise space, ensuring that every corner is utilised effectively. The kitchen comes equipped with essential appliances, making it easy to prepare meals and enjoy the convenience of home cooking.

The bathroom is modern and functional, providing a comfortable space for your daily routines. With the property being available now, you can move in without delay and start enjoying your new home.

Please note that bills are not included in the rent, and a deposit alternative via Reposit is available for just £150, making this an attractive option for those looking to minimise upfront costs.

This studio flat on Empress Road is an excellent opportunity for anyone seeking a charming and practical living space in Derby. Don't miss your chance to make this lovely property your new home.

Details

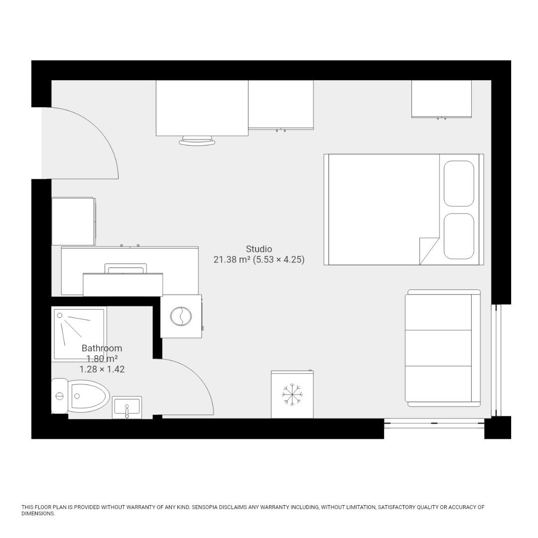
Studio 21.38 m² (5.53 × 4.25)
This studio room offers an open and versatile living space measuring 21.38 square metres (5.53 x 4.25 metres). It features a double bed positioned near a bay window that fills the room with natural light. A compact sofa sits adjacent, creating a small seating area. There is also a wooden wardrobe and chest of drawers for storage, alongside a desk and chair providing a workspace. The floor covering is mainly carpet, with a vinyl section marking the kitchen area, which includes fitted cabinets, a sink, electric stove, fridge, washing machine, and ample counter space. The entrance door is situated near the kitchen area, making the layout practical and easy to navigate.

Bathroom 1.28 x 1.42 m (1.80 m²)
The bathroom is compact yet functional, measuring 1.28 x 1.42 metres (1.80 m²). It is fitted with a shower enclosure, a toilet, and a small sink with a mirrored cabinet above it. The walls are clad in light tiles, while the floor has a wood-effect finish, providing a neat and practical space for daily use.

Front Exterior
The exterior is a traditional red brick terrace with a stone boundary wall and a small paved frontage. The doorway features a dark wooden door with a fanlight above, and the building has bay windows and a mixture of white cladding and brickwork on the upper part of the facade. The street appears quiet with a residential feel.

Floor Plans

EPC

Request Further Details

Or arrange a viewing