Covering Derby and surrounding areas.

Search Properties

Ferncroft Walk, Chellaston, Derby

Derby

£160,000 OIRO

2 x 2 x
Department:
Sales
Type:
Apartment
Availability:
Sold STC
Receptions:
1
Tenure:
Leasehold
Council Tax Band:
B

Property features

  • Top Floor Apartment
  • Allocated Off Road Parking
  • Two Double Bedrooms
  • En-suite
  • Modern Open Plan Living & Kitchen
  • Juliet Balcony
  • Maintained Rear Garden
  • Close to Local Amenities
  • 360 Virtual Tour on Listing

Summary

Welcome to this luxurious and spacious apartment located in the desirable area of Chellaston, Derby.
This stunning property consisting of 1 reception room, 2 bedrooms, 1 en-suite, and 1 family bathroom, is finished to a high standard and boasts a modern design.
Situated on the top floor, this apartment spans an impressive 78sq m, providing ample space for relaxation and entertainment.
The property, built in 2009, exudes a contemporary charm that suits a range of buyers from first-time buyers, families or investors seeking a lucrative opportunity.
Some highlights of this apartment are the bright and spacious open-planned kitchen living area with Keylight windows and the charming Juliet balcony, where you can take in the views of the surrounding area.
Additionally, being close to local amenities, this property offers convenience and easy access to shops, restaurants, schools, the A50, M6 and East Midlands Airport. Don't miss out on the chance to own this fantastic apartment in Ferncroft Walk. Contact us today to arrange a viewing and experience the comfort and elegance this property has to offer.

Details

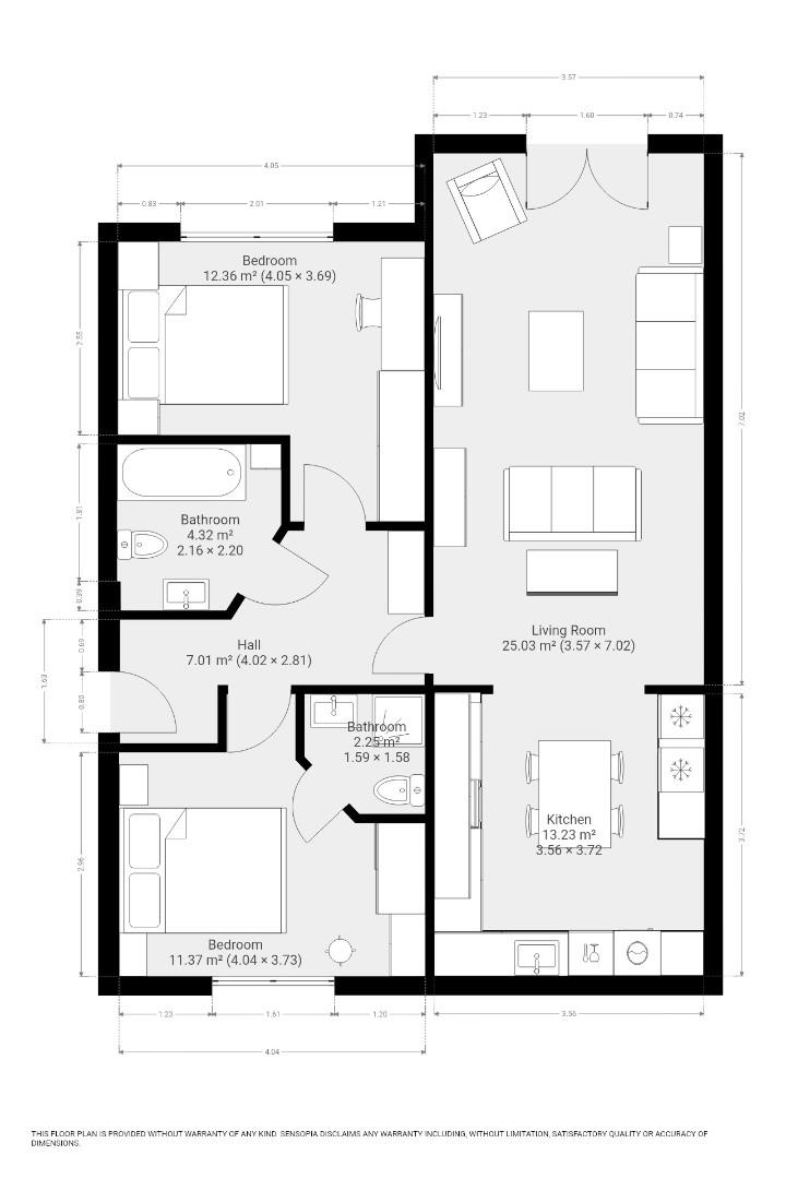
Reception Hallway 4.02 x 2.81 (13'2" x 9'2")
Laminate wood flooring with ample space for storage.

Main Family Bathroom 2.16 x 2.2 (7'1" x 7'2")
Floor and wall tiled spacious main bathroom with WC, radiator, vanity with hand basin and large bath with shower head.

Kitchen 3.56 x 3.72 (11'8" x 12'2")
A bright and spacious open plan kitchen, renovated with luxury vinyl floor tiles, featuring two Keypoint windows, ceiling spot lights and worktop down lighting. This space also includes integral appliances such as Hot Point oven, gas hob and extractor fan and a pull out mixer sink tap. Space available for stand alone fridge, freezer, clothes washing machine, clothes dryer and dish washer.

Living Room 7.02 x 3.57 (23'0" x 11'8")
A bright and spacious open plan kitchen with laminate wood flooring consistent with the bedrooms and hallway. This space features a Juliet balcony with views over the surrounding area and two Keylight windows.

Master Bedroom 4.04 x 3.73 (13'3" x 12'2")
The master bedroom offers fitted floor to ceiling mirrored wardrobes with ample room for additional storage, an en-suite shower room and views onto the rear garden. The laminate wood flooring is consistent with the living room, hallway and second bedroom.

En-suite 1.59 x 1.58 (5'2" x 5'2")
Comprising of a shower enclosure housing, WC and vanity with hand basin.

Bedroom Two 4.05 x 3.69 (13'3" x 12'1")
This spacious second bedroom has views over the surrounding area and offers ample opportunity for storage with laminate wood flooring consistent with the living room, hallway and main bedroom.

Garden
The property includes a maintained rear garden with a grass and stone area and access to covered bike shelter for exclusive use to the buildings' residents.

Parking
This property comes with a reserved parking space and offers additional visitor parking spaces alongside street parking.

Floor Plans

EPC

Request Further Details

Or arrange a viewing